Проектирование деревянных домов, составление смет
- архитектор, предлагаю свои услуги по проектированию малоэтажных деревянных домов любого назначения в программе К3-коттедж из материалов таких как:
Простой брус
Клееный брус
Оцилиндрованное бревно
Профилированный брус
Технология «Двойной брус»
Лафет
Каркасное деревянное проектирование
Помимо проектирования я занимаюсь разработкой архитектурной 3D визуализацией и анимацией от домов до поселков для вашей фирмы.
1. Вы получите точный проектный отчет (Программа К3 коттедж позволяет получить максимально точную раскладку по венцам, раскрой бруса, развертки стен, развертки кровли и мн. др.) не более чем за 10 рабочих дней.
2. Стильные и эксклюзивные архитектурные решения (Стадия АР, КД)
3. Дешевость по сравнению со штатными архитекторами (без накруток НДС).
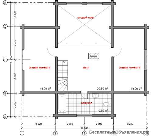
ПРИМЕР ГОТОВОЙ ПРОЕКТНОЙ ДОКУМЕНТАЦИИ ПРИКРЕПИЛА ФАЙЛ К ПИСЬМУ
Цены на проектирование:
Простой брус — 100 р/м2.
Клееный брус — 100 р/м2.
Профилированный брус — 100 р/м2.
Оцилиндрованное бревно — 100 р/м2.
Лафет — 100 р/м2.
Технология «двойного бруса» — 100 р/м2.
Каркасное деревянное проектирование — 100 р/м2.
Цена на проектирование указана за 1 кв.м. по габаритам дома.
Цены на архитектурную 3D-визуализацию и анимацию:
3D визуализация по чертежам — 5000 руб.
3D визуализация ландшафта — 800 р/сотка
3D анимация — 10 000 р/мин
В создание визуализации и анимации входит благоустройство прилегающей территории, согласно, предоставленного эскизного генерального плана с использованием малых архитектурных форм, озеленения, люди в движении, животные в движении, автомобили в движении. Высокое качество проработки текстур, света, время суток, время года. Количество изображений – по договоренности.
Контакты
Архитектор, Колпакова Алиса Александровна
Вы можете мне позвонить: +7-961-75555-73 (Viber, whatapp)
E-mail: mstroydom@bk.ru
Мои работы вы можете посмотреть на сайте: https://mega-stroydom.jimdo.com/
С уважением,
Архитектор - Колпакова Алиса Александровна
E-mail: mstroydom@bk.ru
Сайт: https://mega-stroydom.jimdo.com/
Skype : alisakolpakova
Билайн: +7-961-75555-73 (Viber, whatsapp)
Пермский край, г. Березники
Простой брус
Клееный брус
Оцилиндрованное бревно
Профилированный брус
Технология «Двойной брус»
Лафет
Каркасное деревянное проектирование
Помимо проектирования я занимаюсь разработкой архитектурной 3D визуализацией и анимацией от домов до поселков для вашей фирмы.
1. Вы получите точный проектный отчет (Программа К3 коттедж позволяет получить максимально точную раскладку по венцам, раскрой бруса, развертки стен, развертки кровли и мн. др.) не более чем за 10 рабочих дней.
2. Стильные и эксклюзивные архитектурные решения (Стадия АР, КД)
3. Дешевость по сравнению со штатными архитекторами (без накруток НДС).
ПРИМЕР ГОТОВОЙ ПРОЕКТНОЙ ДОКУМЕНТАЦИИ ПРИКРЕПИЛА ФАЙЛ К ПИСЬМУ
Цены на проектирование:
Простой брус — 100 р/м2.
Клееный брус — 100 р/м2.
Профилированный брус — 100 р/м2.
Оцилиндрованное бревно — 100 р/м2.
Лафет — 100 р/м2.
Технология «двойного бруса» — 100 р/м2.
Каркасное деревянное проектирование — 100 р/м2.
Цена на проектирование указана за 1 кв.м. по габаритам дома.
Цены на архитектурную 3D-визуализацию и анимацию:
3D визуализация по чертежам — 5000 руб.
3D визуализация ландшафта — 800 р/сотка
3D анимация — 10 000 р/мин
В создание визуализации и анимации входит благоустройство прилегающей территории, согласно, предоставленного эскизного генерального плана с использованием малых архитектурных форм, озеленения, люди в движении, животные в движении, автомобили в движении. Высокое качество проработки текстур, света, время суток, время года. Количество изображений – по договоренности.
Контакты
Архитектор, Колпакова Алиса Александровна
Вы можете мне позвонить: +7-961-75555-73 (Viber, whatapp)
E-mail: mstroydom@bk.ru
Мои работы вы можете посмотреть на сайте: https://mega-stroydom.jimdo.com/
С уважением,
Архитектор - Колпакова Алиса Александровна
E-mail: mstroydom@bk.ru
Сайт: https://mega-stroydom.jimdo.com/
Skype : alisakolpakova
Билайн: +7-961-75555-73 (Viber, whatsapp)
Пермский край, г. Березники
| Цена: |
100 руб
|
| Город: |
Соликамск
|
| Тип: | Предлагаю |
| Автор: |
|
На сайте с 28.06.2018
|
|
| Сайт: | mega-stroydom.jimdo.com/ |
| Дата: | 06.05.2024 08:01 |
| Номер: | 2110213 |
Сделать объявление:
Ссылка на это объявление:
Похожие объявления

Предлагаю воспользоваться услугами проектирования! Проектирую Деревянные Дома, Бани, Беседки, из обычного или профилированного бруса. Лафет...